Nouvelle recherche Cette annonce m'intéresse

MAISON INDIVIDUELLE T6 AVEC GARAGE ET JARDIN

Prix : 308 000,00 
Honoraires inclus à la charge du vendeur.
Type de bien : Maison
Pièces : 6 pièces / 4 chambres
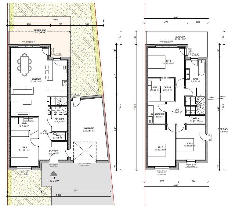
Surface : 137,39m²
Localité : Viterne (54123)
Référence : 54058-700

Description du bien

VITERNE,  CONSTRUCTION NEUVE , maison individuelle T6 de 137,8 m² habitables sur 2 niveaux comprenant, au rez-de-chaussée, entrée, cuisine équipée ouverte sur salon-séjour avec accés terrasse, cellier, chambre avec salle d'eau, WC, chaufferie et garage 1 VL. 
A l'étage, 3 chambres dont suite parentale avec dressing , salle d'eau et terrasse panoramique de 12 m², WC, salle de bains. Chauffage par PAC réversible. les taxes d'aménagement et d'assainissement sont comprises dans le prix, les raccordement EDF, eau, et fibre également, ainsi que les équipements cuisine et sanitaires à choisir par les acquéreurs. Jardin clos de 426 m² expo traversant E/O.  Plusieurs lots disponibles.  Réseau Immobilier Notaires 

Performance énergétique

logement extrêmement consommateur d’énergie logement très performant passoire énergétique kg CO /m².an ² consommation (énergie primaire) émissions kWh/m².an 97 15 *
15 kg CO /m².an ² * Dont émissions de gaz à effet de serre peu d’émissions de CO émissions de CO très importantes ² ²

Montant des dépenses théoriques annuelles d’énergie

Coût annuel (min) : 650.00 €
Coût annuel (max) : 900.00 €
Année de référence : 2021

Caractéristiques

Nombre de salles de bain : 1
Terrasse : oui

Mandat

Téléphone mandataire : +33383652829
E-mail mandataire : Veuillez utiliser le formulaire de contact ci-dessous ...
Négociateur : Olivier LOISEL

Cette annonce m'intéresse

Captcha
* Les champs suivis d'un astérisque sont obligatoires.

Conformément à la loi n°78-17 du 6 janvier 1978 modifiée relative à l'informatique, aux fichiers et aux libertés, et au règlement européen 2016/679, dit Règlement Général sur la Protection des Données (RGPD), vous disposez d'un droit d'accès, de rectification, de suppression des informations qui vous concernent.
Navigateur non pris en charge

Le navigateur Internet Explorer que vous utilisez actuellement ne permet pas d'afficher ce site web correctement.

Nous vous conseillons de télécharger et d'utiliser un navigateur plus récent et sûr tel que Google Chrome, Microsoft Edge, Mozilla Firefox, ou Safari (pour Mac) par exemple.
OK